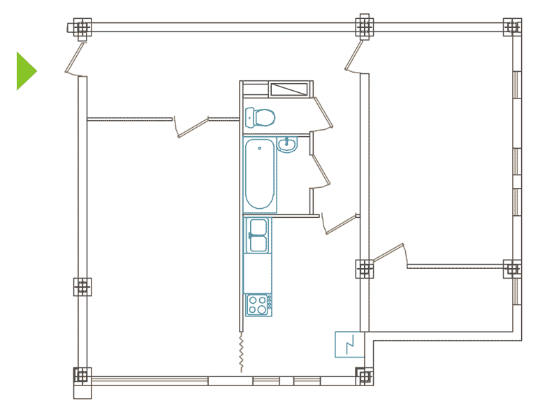
Penthouses :: Floor 7, Apartment 15
Excellent flat with 2 room(s).
- Total area: 60.85
- Rooms: 2
- Verandas: 1
- Saloon
- Bedroom
- Kitchen
- Wardrobe
- Entry hall
- WC

Imobiliar group
We propose ourselves to be proactive and always to be the ones who outline the future standards. We try to attract and improve the most motivated people from the field in order to create reliable teams capable to cover large areas of expertise. Thus we strengthen our power in sales, implementation, consultation and advising. It is very important for us to maintain communication, to interact with our clients and to always offer solutions perfectly adjusted to their style, needs and requirements.
We know that the success in business can be reached only by continuously overcoming one's own standards, learning and experiencing new things. That is why we propose ourselves to concentrate on expanding our activity towards new segments of the real estate market.
Contact us: office@mre.md
| Floor, Apart. | Rooms | Surf. (m2) |
|---|---|---|
| 6, 1 | 3 | 75.42 |
| 6, 2 | 3 | 68.45 |
| 6, 3 | 2 | 60.05 |
| 6, 4 | 3 | 85.58 |
| 6, 5 | 3 | 85.58 |
| 6, 6 | 2 | 60.05 |
| 6, 7 | 3 | 68.45 |
| 6, 8 | 3 | 75.42 |
| 7, 9 | 3 | 82.04 |
| 7, 10 | 2 | 60.85 |
| 7, 11 | 2 | 62.34 |
| 7, 12 | 3 | 88.18 |
| 7, 13 | 3 | 88.18 |
| 7, 14 | 2 | 62.34 |
| 7, 15 | 2 | 60.85 |
| 7, 16 | 3 | 82.04 | Show all |
Address: 5/2 Cornului str.
MRE Contacts:
Address: MD-2005
Republic of Moldova, Chisinau,
60/2, Puskin str.
Phone: (+373 22) 26 06 78
Fax: (+373 22) 26 07 36
Mobile: +373 60 24 46 90
Email: office@mre.md
Excellent flat with 2 room(s).

Copyright MRE 2007. All Rights Reserved!
homepage | about us | services | portofolio | send your offer | gallery

